Vente – Maison 70.20 m² – La Rochelle

💰 200000 €

Honoraires à la charge de l’acquéreur : 10000 €

Zone soumise à encadrement des loyers : Non

🏠 Caractéristiques de ce bien :

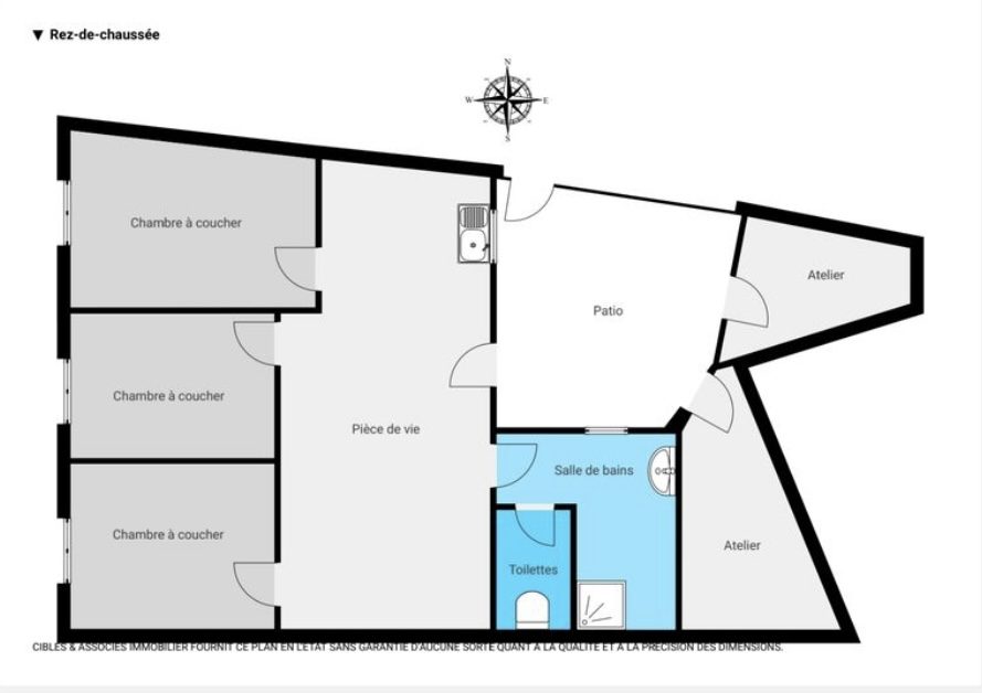
Surface habitable : 70.20 m²       ✓ Pièces : 4       Chambres : 3       Salle de bain : 0       Salle d’eau : 1       Chauffage : Electrique       Étage :       Stationnement interne : 0       Stationnement externe : 0       Quartier :       Ascenseur :       Date de construction : 1900       Superficie terrain : 123

 


Référence : VM1279-CIBLES

Maison Ancienne à Rénover avec Potentiel Exceptionnel
La Rochelle – La Pallice. Découvrez cette propriété à rénover de 70 m², sur une parcelle de 123 m², située dans un quartier dynamique, à quelques pas des commerces, service de santé, écoles et transports. La maison de plain-pied de type T4 se compose d’une pièce de vie avec un espace cuisine, de 3 chambres et d’une salle d’eau avec wc séparés. En complément une cour d’environ 20 m² avec 2 ateliers.
Ne manquez pas cette opportunité unique de créer un foyer personnalisé, ou pour un projet d’investissement. Vous êtes intéressé par cette propriété, vous pouvez contacter Capucine MATÉO au 06.21.84.35.49 (El RSAC849189831) de CIBLES ET ASSOCIÉS IMMOBILIER pour obtenir plus d’informations et organiser une visite.

 


Diagnostics énergétiques :

    Bilan énergie : F   –   Conso. énergétique : 358 kWhEP/m2 /an
    Bilan GES : C   –   Emissions GES : 14 kgéqCO2/m2 /an

Montant des dépenses annuelles d’énergie pour un usage standard est compris entre :
2316.00 €/an et 3134.00 €/an basée sur 2021 comme référence des prix de l’énergie.

Date du diagnostic : 14/11/2025

 

Les informations sur les risques auxquels ce bien est exposé sont disponibles sur le site Géorisques : www.georisques.gouv.fr

 


Contact :

Annabelle VIOLETTE
a.violette@ciblesassocies.com – 0612444990